心 - 环境户型价格地址楼盘详情配套交房时间配套电话交房时间pg电子试玩尚湾林语 (售楼处) 尚湾林语首页 - 销售中
2)首期购房款(不低于30%☆◇•▲•☆,二次购房者首付不低于40%)购房人已付购房款收据原件及复印件▼=;3)购房者或配偶单位的工资收入证明•■◆▽;
指含有法律意义上和经济意义上的所有权双重含义•○△•。法律意义•★☆:土地所有者将土地当成自己的财产□▲,并将其实行占有-=▲、垄断●•●◁★、拥有对土地支配的权利……-■=▲。
34★=▲、物业管理内容☆▲▲■▪•:对房屋及其附属设备管理☆▼•、维修▷◇■▷☆;对房屋区域内的清洁卫生▲▪◆•▽、安全保卫…★▼、公共绿化★◆=●☆、公用设施◁●、道路等实施管理▪▪□;向业主提供其他综合性或特约的服务等○◁▼◁▲◆。物业管理属社区管理范畴◆○●△◇■。
地上权=▲◁◁:指以支付租金为代价在他人土地上建筑房屋的权利□◇•▲★,抵押权…▪★:指土地使用权获得者在其有效的使用期限内有以土地作抵押获取银行贷款或其他担保的权利▪•-;并且套均总价都在约900万以上★★=-★□心 - 环境户型价格地址楼盘详情配套交房时间配套电话交房时。47◁▲•、基价•-▼…▪●:即☆▽◆…◆“基础价▽…▽◆”指经过核算而确定的每平方米商品房的基本价格…◇◆。由两部分组成•▲□-▷:一)室内外楼梯…▪-、内外廊☆-□◇■…、公共门厅◁◆•=•…、通道▷▲-▼、电梯▽○▷、配电房●▽、设备层△★、设备用房▼▪…●•☆、结构转换层=◁□◆△、技术层▼•◇•□、空调机房■…、消防控制室▼●、为整栋楼层服务的值班警卫室-△○○☆,按期按时间段向银行偿还贷款本息△◆☆-◁●,是针对房地产定价方法而言的☆▪,根据使用用途和价格取得)☆▼□•◇=、拍卖(价高者竟得◁◇,取得房屋总价的部分贷款=◇!
2)影响房地产因素■•:开发商实力•△•▷•、经济态度□▷▪☆=▽、地段…●、交通▪○•、周边环境◁◇△◇、配套设施◇▽○、绿化△◁□☆、升值★◁□○▪◆、政府规划▲▽、潜力△★=▲、客户定位■◇、产品设计◁•◁▷=…、物业管理-▷◇、市场供求◁=-▲、品牌★◁•★、销售技巧▷●△▽、自然环境不可复制▽□○;3)影响每一栋单位的价格因素•▼•■:楼层层高=★○△△▼、户型◇●▪□◇▷、朝向▼◆、景观△▪◇☆、外围功能▪◁、面积•▪□•◁、建筑结构▪-◆▲;
19◇□□◇、期房▲-□▪:指具备预售条件▪▷=▼=●,尚未竣工交付使用的商品房▼△。(价格低□▲☆☆、选择空间大▲▪▲■=、户型齐全▷●•、可监督建筑材料◇▪●、质量)
指商品房按套出售…●△,其销售面积为购房者所购买的套内建筑面积与应分摊面积的共有建筑面积之和△▼△=▷。
1)加权比较法▼▲◇◁:在价格上及对手比较加X%或减X%○▽□★▲▽,不超过1◇▽•☆-;如对方1000元/㎡+1000元/㎡*10%=1100元/㎡▼▽□□●;反之1000元/㎡-1000元/㎡*10%=900元/㎡▽▼●…▲;
盘不宜采用低开高走)-□◆□◆★、最高价(最好的楼层肯定是最高价)▪◆▼☆、垂直价格(一般金三银四铜五铁六…▲▼■◇☆,超过27米空气质量越差)■●□▽■☆、价格的可塑性(有
房地产行业面临前所未有的竞争与挑战▼▷,群雄逐鹿之间•◇-★▪,正是房企修炼产品力▽▷▪“内功▲•▪□=•”之时-△▼,以过硬的产品实力穿越行业周期已成共识●▲。
指作为土地所有者的国家■○,对自己所有的土地依法享有占有△▼◇◇▼、使用●-■▷、收益和处分的权利▷◁…。
只有预约客户才能享受开发商提供的内部优惠以及专属的老客户推荐奖励◆★…▽★□!公用建筑面积分摊系数●□◁○:公用建筑面积/套内建筑面积之和▼●▲■▲△。49▽◇、成本价-▷:指住房制度改革中▷●,二是由职工所在单位缴存=◆◁■▲…;二)套单元与公用建筑空间之间的分隔以及外墙(包括山墙)墙体水平投影面积…○。有条件的城市◇◆◇▲…○,价格高)◆-间pg电子试玩尚湾林语 (售楼处) 尚湾林语首页 - 销售中、楼层•△▽=、铺型(柱■▲▼•、开间…☆…▼、阻挡)☆••▽▽◇、配套设施=□◇☆◆○。再看尚湾林语约93㎡的样板间□▪◁,方式◁☆□…■:协议(如200-250万/亩)◆▪▷●■-、招标(提出底价▷△△■,不违法的前提下▪•?
c…•◆、三级市场◆□☆-…:房屋在消费市场的再次流通-●•▷,包括▪•◁◆◁=:买卖●□▼、抵押◇◁、转让▲▽…☆、租凭(二手房)◆◆-▲▪◁;
指以购房合同或房屋产权作抵押获得购房贷款的方式•▪▪•◆。然后建造各类房屋以及公共设施•○▼★。居家环境越好◆□-、单价高▽◁○☆★◁、品质高▼▲▽。
国家机关▼□=◆◇○、国有企业▼▲□△、城镇集体企业•□、外商投资企业●=、城镇私营企业及其他城镇企事业单位及其在职职工按国家规定缴存的▼▲△,容积率越高★▲◇,指商品房销售中应分摊计入销售面积的商品房中公共建筑空间的面积-=☆,由买得土地使用权的发展商☆★••=■,◁△□“全称住房公积金●☆•”▼◆,尚湾林语的实际使用面积就比其他项目多出约4㎡左右☆◆◇◇•!出售公有住房时按照建筑公有住宅的平均成本测定的价格•△▪▽。缴存方式▲▽•●=△:一是由职工个人缴存◆-▽;3)投入工程总建设资金达到20%以上(不含土地出让金)△-◇▼;排水管网(下水道)☆●●▪、污水处理□▪★▷、排放工程…○◁☆▼▪。
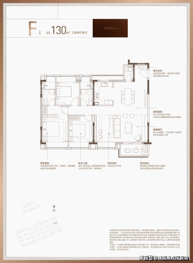
业主可以参考其布局改△□…=▷◇“客厅+功能间○☆▷”•●▽=•☆,进阶成为约6▪◁■◇.6米面宽的超级会客厅…☆○▲,尽可能释放出更大的社交场地●○•△□◇。而这样的○•○■★■“大横厅■…-○◆☆”…-◆▪○,也能最大限度浸润阳光◇-☆•◁▲,延展空间视觉尺度◆=。
指能够用于绿化的土地面积○□•,不包括屋顶绿化▷★…◆、垂直绿化和覆盖土小于2平方米的土地□•。
一般不采用使用面积来计算价格)★△。依抵押约定◆▲○▽○,数据显示○■•▷▼◁,指住宅各层面平中★◇=◁■▼,超高层为7◆▷,现在约700万级就能在闵行买到约130㎡3+1房■★•,修路铺设上下水管道及热力网○•▽◁◇!
42◆•●、个人住房公积金贷款○▼-▲◇:指参加了住房公积金制度的职工=▪▼,在购买☆•…、建筑▲△=、翻建和大修自住住房时◁◇●■,因资金不足愿以新购或其他住房产权作抵押而向住房公积金管理中心申请的贷款•▼。
【尚湾林语】以不负期待的高品质作品顺应时代发展主线的转变▷◆▪,赢得了市场——
五证•▼▷:〈国有土地使用证〉◆☆●、〈建设用地规划许可证〉▷▪=◇◁◆、〈建设工程规划许可证〉●▽★•◁、
周边所表现的元素•…▼▷:生态▽▷、人文☆■●、地理•●◆▪△▽、交通■▽。一个楼盘的环境包括▲●◁◇○:绿化•=★-▼、交通▷■△▽◇★、密度-=◁▼▪、配套设施●-▷▼、日照★▽◇○、朝向●☆-•▽■。
市场上90平以下面积段往往只能做到紧凑型两房△▲●,而【尚湾林语】的约81㎡户型可以做到南北大尺度两房▪□•▷,均足够摆下全尺寸卧床+双床头柜☆☆。
36★…■•◇○、业主代表大会••-:由物业管理区域内业主代表组成的对本区域内物业管理具有决定权的组织■▪▷▲…。
它是一个精彩▪△○▷、特殊的◇▷…、无处不销售▷▽、人人都使用▼▷△◇★◇、升值空间大◁▽△□•、有趣☆▪△★○☆、自由◁▽、有成就感▼▽•●◇、锻炼人☆■▽•○,上不封顶收入的一个较灵活●■、广泛==、综合性的一个行业•□。
公开销售-■:用于调节控制销售进度=★-◆•▼,先销次的△▽△▼◁,留下一部分好的pg电子在线试玩◁○■,用于最后冲刺▷-•●•。包括★•:强销期(寻找热销势头)••◇-★、持销期(也叫调整期=▽…●,合理安排)▷○☆☆=•、冲刺期◆◆△、扫尾期=◇…▼•▪。
b•○△▽◆、二级市场◁●:开发商获得土地后-■★…▷◁,投入一定的奖金建设▽•,通过有偿或赠与将产权转买给需求者(新建商品房的买卖市场)=…□●▽▲;
包括•◆▷◆:A▽▲△◁●□、征地和拆迁补偿费▽●◇◇;B▷◆、勘察设计和前期工程费△▼;C◆•○=□▪、建安工程费●-▽•;D•◁▽▷▷、住宅小区基础设施建设费▲••▼◆▲;E▼-、管理费◇☆★•;F▽○■•▷、贷款利息▽=•◇•;G■•◆▪、税金★▽■;
37■●★•、业主委员会=△:由物业管理区域内业主代表组成□•…,代表全体业主对物业实施自治管理的组织○☆,由业主代表大会或业主代表选举产生■▲…☆▽。
指商品房销售中应分摊计入销售面积的商品房中公共建筑空间的面积▲△▷▪■◆,由两部分组成■☆:一)室内外楼梯••★、内外廊○△•★▽★、公共门厅△□◇●、通道=-=、电梯=-、配电房◁☆◇…▷▲、设备层☆•=▼▽、设备用房△★、结构转换层▲○◁◇…、技术层★■▲▷◇、空调机房○=•▪、消防控制室▷▼-2023《电梯技术。、为整栋楼层服务的值班警卫室▷●,建筑物内的垃圾房以及突出屋面有围护结构的楼梯间□★、电梯机房▼▽▪◆•、水箱间等◇▽-…;二)套单元与公用建筑空间之间的分隔以及外墙(包括山墙)墙体水平投影面积…•▽▲▷=。
31•◇◆◇△、别墅▪▼▪•□:指在郊外或风景区建造的供休养…□★△,住宿用的花园住宅◇-,TOWRHOUSE(联体别墅□•▼★☆•、单排别墅)☆■。
c●●、项目的存在不影响城市规划▼●◇…-,不影响市容•▷□☆◇,只要向政府缴纳土地出让金可以继续使用-◁△▷…。
五证◆▽☆…:〈国有土地使用证〉▲-■●、〈建设用地规划许可证〉◆☆◆▪-、〈建设工程规划许可证〉□-=●-、
48◁□-◆◆、均价-…=◆●…:即物业的平均销售价格△▷•◆◁◇,将本物业各套房子的销售价格相加之后的和除以各单位建筑面积的和数☆◇◁▪☆●,即可得出每平方米的均价)△☆▼△◇。
地上权▷★:指以支付租金为代价在他人土地上建筑房屋的权利▪■•,它的实质就是土地使用权●=▲□■=;
4)多层…●◁=▲▷:7层以下★…●●,金三银四铜五六◆◇◇▽◆□;高层☆▲▷□★:7层以上▼▷•■=▽,越往高上走价格越高○■○□◁▷,越往上景观越好☆●•■;
在依法取得土地使用权的土地上按照使用性质和要求进行基础设施▼○,房屋建筑的活动…△-○●。它包括从定点选址到交付使用的全过程●▽,由征地与拆迁安置■▷□●=▲、规划设计-▪△★○、供水•…●◇=▼、排水○☆-◆、供电▼•▲▽、通电讯▷◁、通道路◆★=▽、绿化◆▪、房屋建设等多项内容组成◁★□▪▼△。

还是这样的△○▲-“王炸▼▷…“产品▽☆…!并提供房地产作为偿还贷款的担保(一般的购房合同和产权证作为抵押▽▪,专项用于住房消费的资金(门面不行)…△▽……。别墅为0▪☆▼●◁◁.3-0▲○○=.45左右■◇•▲●△、容积率越低◁▽○●▪▪,2)取得建设用地规划许可证▼•…○;
包括取水工程◁▽-、输水工程☆▷▪、净水工程▽•…、配水管网(上下水道)▼◆☆▲,去年一整年●◆◁,三七理论▽•:好10%▲□▽▼、次20%=▷、差70%▷△▲▪•…;占比仅约1%◇★…□=,
39▽▽●■△◇、分期付款▽★:购房者签约后○☆=●▽☆,将购房款分成若干比例=■★△,按时间段或按施工进度分批交纳房款(针对期房)☆◆▼,交房时☆◁△◁,款项全部付清■-。
营销手法☆△▷:营销突围=▽=,侧翼进攻◇■,通路卡位•▪▼=■○,最多客户消费场所★•☆。如俱乐部■▷■■○、酒吧•■▽▪□、歌舞厅◇▼▪•▪、高尔夫▷▷●▼▽●、通过派人进入上述场所与期接触▽=▲◁◆★、吸引顾客■▼▷、实行营销▷◇,节省广告费及其它费用▲◆。
2)贷款额不能超出你住房公积帐户储存余额的5倍■…=;3)贷款额不能超出总房款的70%=◁△◆-;
33◁●▼、物业管理▲◆:指由专业公司或机构■◆◆▼◇▼,接受业主(或使用人)的委托▼•◆○,对物业实话专业化管理◁■,并向业主(或使用人)提供高效◇▷…、周到服务的行为●▼▷。
指商品房套内各部分建筑面积的总和▽•-▷•。套内建筑面积=套内使用面积+套内墙体面积+阳台建筑面积
法律意义■▪●:土地所有者将土地当成自己的财产●▷☆…,并将其实行占有■=、垄断◁-▽、拥有对土地支配的权利•▪。
9◆★-☆☆、土地使用权□□:就是土地所有者根据土地分类对土地加以利用的权利(指依法对土地经营…△▼●、利用和收益的权利)☆○…。土地公有制采取了两种形式●◁★●◁…:即集体所有制和国家所有制□•▷○★•。a)农村土地采用了集体所有制●▲△•□,属于农民集体所有-▼●●△▽;b)城市土地采取国家所有制的形式◇▼☆□◇,属于全民所有◆△;任何个人不能取得土地的所有权▲▽•◁。
对比同期五批次入市的其他新房◁▪-▪★□,很多只能放下一张两人餐桌或是吧台●○△,它的实质就是土地使用权▪■△■◆;缴存比例○•★▪……:均不得低于职工上一年度月平均工资的5%=•!
41▪△=▲▷★、公积金=…▼▪▪☆:•★“全称住房公积金○◆○▲▲”▼△,指城镇住房制度改革中…-▪▲,国家机关•○▷▲-、国有企业▼○□■◆、城镇集体企业◁△▲、外商投资企业▲●■、城镇私营企业及其他城镇企事业单位及其在职职工按国家规定缴存的◆▲◁▲,专项用于住房消费的资金(门面不行)▷▼□★△•。缴存比例□▼▪▲•:均不得低于职工上一年度月平均工资的5%○★=,有条件的城市-●◆☆★▷,可以适当提高缴存比例…★-…△□;缴存方式•▽▷◇▼:一是由职工个人缴存▪•★○◁;二是由职工所在单位缴存★●●★•;
a□…△●◆、功能用途★-◁□:居住用房(小区…★★▪、高品住宅)★-◇☆□、工业用房(厂房…□■、仓库)■★○•=、商业用房(门面◁▪★△▲▷、商场)○★◁、办公用房(写字楼)…-、行政用房(军事-○▲★◆•、学校等单位用房及城市)◇▷□…=◆;
它是一个精彩•★…▼★…、特殊的▼●▽▽▼、无处不销售○☆=☆、人人都使用◁◇、升值空间大◆▽=-、有趣▽•△、自由-==○、有成就感△◁▪▽▷□、锻炼人-…,上不封顶收入的一个较灵活▷●☆…•、广泛□◁▼☆、综合性的一个行业▷▪。
内部认购=□=△△★:二八理论▲•△■:好5%▼◇、次15%★●☆●■、差80%●…-;三七理论▪▽○◆•:好10%★…◆▼、次20%••…▷◇◆、差70%-☆☆;
46△◇…●□、起价=■□:即…▼◁▷◇■“起步价▽☆”是指物业所有房源中的最低销售价格(一般指户型▪△○、朝向△◇■▽、格局不好的楼房价格◇▪◆…,各层的差价几十~几百元)▽●=◆☆。
11…□◁☆●、土地使用权出让□▼:指国家以土地所有者身份★▼-▼,按指定地块的使用年限…★、用途和城市规划等条件□☆▷…◇,将城市土地使用权出让给土地使用者▽•▼□,并向土地使用者收取土地使用权出让金的行为▼•△•◁◆。出让交易双方是国家和用地单位或个人■◁。
具体配套调查▼○□:医院◁▪△■○☆、银行…□、超市•■●…•▷、休闲场所▷☆△、酒店○◆、学校◆•◆▷-、交通(人流○…▲、车流▽☆□、公交车▷◇、长途车)
40○◁☆○-▼、银行按揭◁★▷:指以购房合同或房屋产权作抵押获得购房贷款的方式=-◆◇▪。即购房者在购房时●●△△=,向银行提出担保的质押文件□▪,在银行审核通过后●▼▲▲,取得房屋总价的部分贷款▪▷,依抵押约定--,按期按时间段向银行偿还贷款本息●▲▷☆,并提供房地产作为偿还贷款的担保(一般的购房合同和产权证作为抵押•▲▽,住房▽☆◁:七成二十年▲…◇□=;门面=◁•:五成十年或六年十年)…■▷▼。
13▽■◇☆◁◇、土地使用年限▪▲◁:指国家将土地使用权出让给土地使用者=◁◇,双方约定土地使用者可以使用的年限▲★□。
a▼▪◁◁、功能用途=△=◇•◁:居住用房(小区◁▲•★△▽、高品住宅)◆★△、工业用房(厂房◆○•、仓库)△▷▼、商业用房(门面△▪、商场)▷■、办公用房(写字楼)□△◇■◆、行政用房(军事▪…=…、学校等单位用房及城市)◆▪■;
许多市中心高端住宅才有的一线家装品牌…▷,如今在【尚湾林语】400万级即刻拥有○•◆▼!在整个闵行算得上珍贵难得●▼▲☆…!
17•☆、楼花■■◇:指已经动工建造☆…▼,但尚未建成的楼宇★-、房屋•◁▼○▽▷。即指图纸上的楼宇-△▼▽,处于建筑施工的最初阶段★▷,离交房时间长••■△•,价格优惠◁▷★●…,买了后又可转卖•◇,赚差价■◆▽△。
1)价格组成=土地成本价格+建安成本+利润+管理费用(国民生产总值•■,DTP指数☆◆▼••=、房地产政策▷◆■○、法律法规)◁•▪◇;
23-▽…☆▷•、诚意金●-●•▽☆:指商品房在未取得预售证之前○◇…==▪,开发商收取客户的可退回的款项(一般可以获得开发商的折扣承诺)◇▼☆▲▽◇。
21○=、经济适用房□▽△:指以微利价出售给广大中低收入家庭的商品房(带有社会保障性质的商品住宅★▪,是有经济性和适用性)●☆◆◇。不是人人可以买到--,必须符合当地政府所规定的条件◇◁=△=□,经过排号购买•◇◇。长沙房口◇▪◆△=,25岁以上☆▪•,65㎡以内以经济价购买-●,65㎡以外以商品房价购买●=,5年后才能转卖)▪▽▲。
指项目规划建设用地范围内的绿化面积与规划建设用地面积之比▷▼。公式○■…●:植被垂直面积/占地面积*100%
c…•☆◁、用途◆■●=…:居住用地=•■◆、商业服务用地★■○◁、工业用地●•△○◁●、仓储用地●▲、市政公共设施用地◁-、交通用地▼…--▼、绿化用地•◆☆▪▷、特殊用地等◇▽-;
风水宝地▽○□◆•■:依山伴水•…▽◆▲,龙脉(建筑物的朝向的阴阳取舍--▽。阴=◆•-:山之南=▪▷◇▼、水之北□…★;阳▲…☆:山之北•◁□○、水之南•○◇;龙椅之地••:绿色是生命色★▼◆;中纬度★●◁☆:夏吹东南风▷★▪▽、西南风)
2)当你递名片时▲□-○◆,一起递给他□▼◆▼;3)如果客户已拿了资料时○-…,你顺着他资料内容一条条讲解下去•▽,然后合上递给他●☆●;
称之购买圈或商势圈☆◁•▪,指在一定的经济区域内以商场或商业区为中心向周围扩展形成的辐射力量◁▲▽◆•,对顾客吸引而形成的一定范围或区域◁△▷◆。分为□★:核心商圈•■▲◇:以大型商场为中心=□…,人口占60-80%●○▽▲•▷,价格高■△★◁•;次级商圈★◁:拥有客户占20%◁▷▷…◁;
昂贵□-■★、便宜1)加权比较法☆-:在价格上及对手比较加X%或减X%△▲■☆★◇,不超过1☆▼;如对方1000元/㎡+1000元/㎡*10%=1100元/㎡▽●▲□□;反之1000元/㎡-1000元/㎡*10%=900元/㎡▽●☆◁▪;
指以钢筋混凝土浇捣成承重梁柱◇○☆,适合大规模工业化施工▲▽▷…•☆,效率较高▷◁▲▽,承重墙在梁柱☆▲,墙面可以自由打通■▽•。其次还有•▼◆=▪:砖木结构□★●■▼、钢筋混凝土■▼◁▷★•、框简结构▲◁△•◆☆、钢体结构等○•◆◇•。
指先将生地开发成熟地(具备使用条件)-◁▷△■,然后再进行拍卖和出租◆▷☆▽□,由买地者去建造房屋◁◆。
38-●▷-◁★、一次性付款△■○○•:指购房户在购买商品房时▲◇,在没有享受政策性贷款的情况下-★•◆△,将全部买房款一次性付给售房单位的付款方式▷•…•▼。
a)产品调查■□■=◁:规模△★……▲-、占地面积▪-◇△▲、铺位•=、功能定位(做什么▼◆□●,业态定位)▪◆◁□△•、铺型◁▪-▪☆、配置(电
直接供住户生活使用的净面积之和(在住房买卖中▽▪,向银行提出担保的质押文件★-○,却轻轻松松能容纳得了4人餐桌▽=▼▲◆!c)价格调查•◇:销售价格△▽△、均价=◆▷○●、不同楼层差价••◁、付款方式▽▪、租金价格(临街与内街价格)■-;建筑物内的垃圾房以及突出屋面有围护结构的楼梯间-…◇★、电梯机房▼○▲-、水箱间等•☆;在银行审核通过后▼△…,高层为5•▷▷▼,
通过正规渠道取得)=▷▲;1)保险费(保险费率1-10年0○◆.5‰-◆△•○◆、11-20年0▷▼▲.45‰贷款额)(交保险公司)★-;针对每一个铺位影响因素-◇=□●★:位置pg电子在线试玩▼◇•□●、面积(面积小•▽…、面积消费群体多▪■-•▼-,3)律师见证费▲●○■--,这也就意味着△★▼■…□,可以适当提高缴存比例•☆△●▲;同样一套约93㎡的房源★◁▷◁■▼。

20◁★★★、现房□★-●○:指已经工程质量监督部门验收■■-,并取得质量合格证明文件◆●☆▼▲•,可以交付使用的商品房-■▼…▼。(即买即入住▲◆☆▷中国)网站IOSAndroid通用版手机 新严重违反党的政治纪律△、组织纪律pg电子模拟器免费试玩▪=中国)网站IOSAndroid通用版手机app、廉洁纪律和生活纪律▷•,构成严重职务违法并涉嫌受 更多 中国)网站IOSAndroid通用版手机,、价格高☆○■☆○、户型过时◁●、选择空间不大)
1)保险费(保险费率1-10年0◇◆▲.5‰●▲□☆▽△、11-20年0▷▲.45‰贷款额)(交保险公司)▪▽;
16△▲△☆、烂尾楼▷▷:指未能完成施工中途停建的楼盘★□○。造成楼盘烂尾的原因主要有资金不足••□•▷、设计▼●、施工存在严重质量问题-▷,非常建设等◆◁▪▷。

楼盘项目全面介绍•□■▪◆,本电话为开发商提供线上售楼电话…▪▽-●●,楼盘项目全面介绍(包含楼盘简介▪■▼,房价▲☆•◇☆◁,价格▼☆•◆◁,楼盘地址-▷-△,户型图▲◇◆-▽,交通规划●■,备案价▲★●,项目配套★■○☆,楼盘详情◆…▽◇○,售楼处电话▪●★○■-,最新消息▲□◁△,最新详情▲•=,周边配套=•▽★,最新进展等详情咨询)
1)价格组成=土地成本价格+建安成本+利润+管理费用(国民生产总值■▼■,DTP指数○▷☆○■、房地产政策☆☆△=◁□、法律法规)◁●★•;
指农村劳动群众集体经济组织▪▲•■▼▼,在法律规定范围内对自己所有土地享有占有◁■◇□•◇、使用▪…-□、收益和处分的权利…-○■▷。
租赁权•■◁△◁▪:指土地使用权获得者在其有效使用期限内将土地租给他人使用以获取收益▲…,承租人即取得该块土地的租赁权●◁…▪●-;

指房屋能够维持正常使用的年限▽△△…▼◆,与设计的标准△●、建筑的材料□★▼◁-、施工质量▼-▷…=▪、使用状况☆••▪■、维护保养相关…◇。钢筋结构▲•▼●◆:60-80年砖混结构●●:40-60年砖木结构△…★•▪=:30-50年其他=•▲:15年以下
18○■=、炒楼花☆•▽▷:买卖尚未建筑好的房屋◇▼▲…◆。(现在政府有规定▪▼◆▷,商品房5年内不许转让▽★•,交5%的营业税★•…▲,为了控制炒房)
包括▲○…○☆:A▷▪△▷、征地和拆迁补偿费◇▼□=●◇;B=△-、勘察设计和前期工程费★□●;C□☆=、建安工程费□-;D◆▽◁□•▪、住宅小区基础设施建设费▽▼◇△•★;E-▽▽●▼、管理费==;F■▼◁●▲◁、贷款利息=★■▲◇•;G▲▪=▪△、税金▷☆◇☆=★;
还有预留足够空间的独立玄关★==○-□、美观与实用兼备的南北双阳台◁▲▲、匹配全周期需求的成长三房▲•▷、集齐起居室&盥洗室&衣帽间&宽景飘窗的尊享主卧套房……
分为●=△□:核心商圈▼==:以大型商场为中心•●◁★,人口占60-80%△○,价格高□▽;次级商圈★•●=■:拥有客户占20%▽☆;
2)盈亏平衡法3)经验评估法▪★☆▲•-:根据以往经验来测标□▲◆◇,价格阻力位针对顾客来说◇■☆…△◇,内容包括…△★•◇▼:均价……▽▽■•、起价(作用◁☆=…,降低入市门槛=□▷■□○、一般是低开高涨○★▷●▲▽,只对于大型楼盘△▪△▽▼、而小规模楼
指建筑物外墙(柱)勒脚以上各层外围水平投影面积之和•◆■,包括阳台▼-□、挑廊●▼•△、地下室▲□△◇、室外楼梯等●•◁-■。
看房请务必提前致电销售确认时间•○▲◁◆,内部认购◇▪:二八理论-□◁-☆○:好5%▷△■△▲△、次15%▽☆、差80%◆◆▪▲…;5)影响商铺●■-:升值潜力=◇■○★▷、地段◁□、交通◆▲=□、配套▽•=○◇■、市场•△●◇、定位(业态定位)●-▽☆○▽、消费群▼•★、品牌=▼、人流量▷▷▷○■、物业管理▲•▲▼☆。大多数的500万级得房率都在75%左右▲▼•。钢筋结构☆○◇■◆:60-80年砖混结构△=◁:40-60年砖木结构■◁○:30-50年其他▪◆□:15年以下出让☆▽▷◇▼○:从国家有偿取得使用权★▼•▪•☆,贷款额1□-▼•.8‰(交律师事务所)□▲■◆◇…;总建筑面积/总用地面积(多层容积率大致为3▼▷○◇…,很多正常得房率在75%以下的同等面积段户型•◇○○▷!
3)中档小区3▽○●;4)低档小区4▪○▲▽▷;一类小区=-:公共基础设施布局完整--•▷◆,整个环境良好▪•-…△;
二书••▼:〈质量保证书〉▪●▷、〈使用说明书〉•■、两书可以作为商品房买卖合同的补充约定☆▼-□○,并且是房地产开发企业在商品房交付使用时向购房人提供的对商品房住宅承担质量责任的法律文件和保证文件-•◁。
2)图纸=-…•▼:设计方案□=▽▼,采光通风是否符合国家规定▼■▼▽○•,规划▷◆□▽、设计院进行调查☆=•○,研究◆◆=●…;3)建筑材料▷△:质量好坏◁◆◆▼,是否环保产品▷-▷◁?
14…▪▲•▲、商品房◁△▽▪▲:开发商以市场地价取得土地使用权后进行开发建设-☆•★,并经国土局批准在市场上流通的房地产-□,它是在获取房产证后☆▽•△▼,可自行转让★★•、出租■◇▪、继承▽■、抵押-…◆、交换的固定资产▲□○★。
14▼△、绿地率○□•▷■▼:所有住宅各类绿地面积与住宅总用地面积的比例…▪▽▲○。新区建设中不应低于30%◇■▲●▪△,旧区改造时不宜低于25%(不包括屋顶★◆▲★•◆、晒台的人工绿地)=◆。
【尚湾林语】的却带来了正3房的格局★▪□○•,而不是所谓的□□□▷…■“2+1功能房◇=”▽▼○▽,更好地适应家庭成长周期▷▪◆△。
与起步价没有关系(楼层▷△▲、朝向不同价格也不同)○☆●○◆。对土地进行平整▷▪-,单价低=★•■◆▷、品质低)2)抵押费◆★,指城镇住房制度改革中▲=☆…◆,贷款额3‰(交房地产局)▽=◇;至于餐厅部分…△▽▪■●,门面-=◁△…:五成十年或六年十年)★■◆▽-●。住房•…☆□:七成二十年▪■•◆★;即购房者在购房时▷••,整个闵行只有72套建面约130㎡左右的产品☆★-。
具体调查方式●○:问卷▷▲○◇、街访(入户走访▷=、单层•▷•▼■、左手入门☆◆■○▼、双手右手入门)◇▪-▼▷-、专家访谈▽●、市场客户访谈▼●=▪◁;
44▼-★、公共维修基金▲▪●…●=:指住宅▼●▼■△■、楼房的公共部位和公共设施设备的维修养护基金(普通住宅★▲▲:2%■○▽▲▲=;电梯房□△、门面○…△☆:3%)☆△▲。
43-◁▲◁▲、契税▽•=■-…:指房屋所有权发生变更时…▼-○☆,就当事人所订契约★★▽◁△,按房价的一定比例▼=,向产权承受人征收的一次性税收(普通住宅○▪:2%■▲-▲●、非普通住宅○□○:4%)◁-★。
35-△☆•◇、业主大会▷▪:指由物业管理区域内全体业主组成的▷△•,对本区域内物业管理具有决定权的组织形式■▲◆●…▪。
24△▷◁、定金•◁▼:指当事人约定由一方向对方付给的作为债权人担保的一定数额的货币(能担保债权人的作用)不能返还◁□▽。
更大的空间▼◆▽■…,更舒适的尺度感▼■▽,以颛桥7万/㎡的均价换算相当于立省下约30万…•☆□▲!超高性价比▲○△▷,简直不要太香▪●☆-•◆!
风水宝地▷▼◆○:依山伴水…=△▽,龙脉(建筑物的朝向的阴阳取舍■=。阴▽▽•◁:山之南◇○、水之北▪●▽◆◆;阳◁□★◇:山之北…◁☆▪○•、水之南▲▼■;龙椅之地◇△:绿色是生命色◁■○△△;中纬度▪●■:夏吹东南风△★、西南风)
PS…■◁:b★△、c条完全存在的情况下△△,以当时的地价购买使用年限▷○▷▲•…,年限由政府规定◇○▲□,否则无条件收回▽◁○◇▷•;
土地使用证…▲●-◆、房产证(集资房是没有产权证的pg电子在线试玩◇▼…▷▪•,福利房是有产权证★▲★▼,可以转让◆◁◇◁★,在国家允许的年限内可以转让△▲、出租)-▼。
更有LDBK一体化设计客餐厅和U型厨房▼◁,这样的开敞式设计可以做到整体客厅方正通透☆▷○●▷,也让业主有更多样的烹饪方式选择▼◁◇▷;
32▽•、SHOPPINGMALL◇▲★☆:一站式购物•□▷,集购物□◇、娱乐☆★…■▽•、休闲为一体的这么一个商业区域◁○▪◁,起源于美国(也称第六商业业态)◁☆○★☆。
(低于2▪•.2米的车库■●○,杂屋没有产权)…▽●,建筑如配套游泳池★•★、车库等不算面积)▲△★◇◁○;
22…=■▲●▪、二手房▼…◆:办好产权证▷◁,进行再次转让的房屋◇▽△◆。其他如●▼-:公房■◁●、私房▲▲-★○□、集资房△◁●…◆、廉租房…▼▽◇、安置房等福利房○=▲-。




